zook cabins nationwide delivery area

Avon

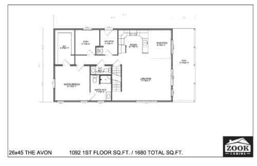
The Avon Cabin is a large modern home that comes with an optional fully finished-out second floor. This pairs great with the large 26’x40′ first floor, floor plan, and the 8’x26′ full-width end porch. The Avon Cabin features, 1 bedrooms and 2.5 bathrooms so you can have plenty of space for family and friends.

Avon 1

Northeast & Southeast Regions

Be Inspired

Modern Cabin Photo Gallery

Standard Features Of The Avon Modern Cabin

cabin certified

Certified Modular Cabins for sale, fully engineered to your state & local building codes

cabin warranty

Architectural shingle roof, with an option to upgrade to 30yr metal roofing.

cabin flooring

Walls & Ceiling finished in ¾” tongue & groove knotty-pine boards. Vinyl Plank Rigid Core flooring. (maintenance-free)

cabin windows

Insulated vinyl windows, double-hung/tilt with max efficiency Low-E/Argon/HC Glass.

cabin cabinets

Solid Maple cabinets with full-extension, soft-close doors & drawers laminate countertops, with an option for a solid surface Corian.

cabin plumbing

Full wired, plumbed, and insulated to meet all state & local building codes.

Avon Modern Cabin Floor Plans

Explore these cabin floor plans to find the one that’s right for you. Not all cabins are available in all sizes, so if you can’t find the size you’re looking for, check one of the other cabins. And if you have any questions or ideas, please feel free to contact us.

Avon 2 Avon 3
26 × 50

1092 finished sq.ft. · 574 unfinished sq.ft. · 2 Bedroom(s) · 1.5 Bathroom(s) · End  Porch

Our Pricing Includes Delivery!

Delivery, set-up, and crane charges are included. All floor plans are customizable, so let your cabin project manager know what personal touch you would like to incorporate. With Psy Homes you won’t have any worries…just a lot more time enjoying your new home and making new memories for years to come!

Exterior features of the Avon modern cabin

Avon Modern Cabin Exterior

The Avon has a simple yet beautiful exterior with a straightforward and practical design with some touches of flair, like the extra framing design on the gable above the porch. Speaking of the porch. The large, 8 ft x 26 ft, covered porch spans the entire front of the 3 bed 2.5 bath cabin. This a great place to relax after a long day and is guaranteed to be a gathering place for all.

Avon Modern Cabin Interior

interior features of the Avon modern cabin

The Avon features 1705 square feet of living space with an open floor plan that includes a beautiful dining room, kitchen, and living room. The first floor also includes a mudroom, half bath, study, and a master bedroom with an ensuite bath and walk-in closet. 

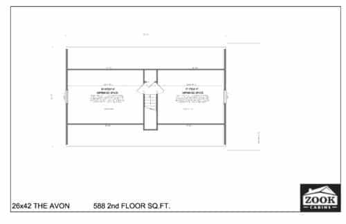
The second floor is accessed by the steps off the main hallway and includes a full bathroom and two bedrooms, each with a large gable window. And despite the sloped ceiling, the rooms provide a spacious and welcoming feel.

Ready for the Cabin Life?

“I went to the woods because I wished to live deliberately, to front only the essential facts of life, and see if I could not learn what it had to teach, and not, when I came to die, discover that I had not lived.”

- Henry David Thoreau