zook cabins nationwide delivery area

Bourn

The Bourn is a small, single-story modern cabin that boasts 1,380 square feet of living space and a 240 square foot end porch that spans the width of the house. In total, the Bourn is a 30’x52′ ranch style modular home for sale that can easily act as a starter home, retirement home, or weekend getaway home.

Bourn 1

Northeast & Southeast Regions

Be Inspired

Bourn Modern Cabin Photo Gallery

Standard Features Of The Bourn Modern Cabin

cabin certified

Certified Modular Modern Cabins for sale, fully engineered to your state & local building codes.

cabin warranty

Architectural shingle roof, with an option to upgrade to 30yr metal roofing.

cabin flooring

Walls & Ceiling finished in ¾” tongue & groove knotty-pine boards. Vinyl Plank Rigid Core flooring. (maintenance-free)

cabin windows

Insulated vinyl windows, double-hung/tilt with max efficiency Low-E/Argon/HC Glass.

cabin cabinets

Solid Maple cabinets with full-extension, soft-close doors & drawers laminate countertops, with an option for a solid surface Corian.

cabin plumbing

Full wired, plumbed, and insulated to meet all state & local building codes.

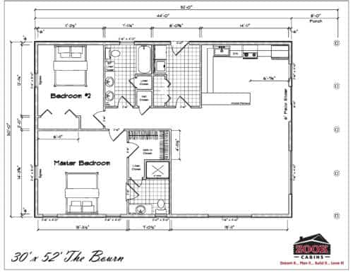
Bourn Modern Cabin Floor Plans

Explore the floor plan options of the ranch style modular homes for sale to find the one that’s right for you. Not all cabins are available in all sizes, so if you can’t find the size you’re looking for, check one of the other cabins. And if you have any questions or ideas, please feel free to contact us.

Bourn 2
30 × 52

1320 finished sq.ft. · 2 Bedroom(s) · 2 Bathroom(s) · End  Porch

Our Pricing Includes Delivery!

Delivery, set-up, and crane charges are included. All floor plans are customizable, so let your cabin project manager know what personal touch you would like to incorporate. With Psy Homes you won’t have any worries…just a lot more time enjoying your new home and making new memories for years to come!

The Bourn Modular Small Cabin Home

Bourn Modern Cabin Exterior

The exterior of the Bourn modern cabin is highlighted by the large entryway porch. This large, 30’x8′ square foot porch is the perfect spot to sip a cup of coffee while watching the sunrise. With a porch this size, it also allows plenty of space for welcoming decorations and comfortable outdoor furniture.

The steep roof pitch and architectural shingles give off an aesthetically appealing vibe that is unmatched.

Bourn Modern Cabin Interior

The Bourn Modern Country Home interior

On the interior, the 30’x52′ Bourn modern cabin offers an open floor plan design. This floor plan features a kitchen, living room/ dining area, 2 bedrooms, 2 full bathrooms, and a mudroom with a washer and dryer.

A highlight of the interior is the beautiful master bedroom with a large walk-in closet and master bathroom. Keep in mind, that the interior layouts of these ranch style modular homes for sale can be customized to fit your specific needs.

Ready for the Cabin Life?

“I went to the woods because I wished to live deliberately, to front only the essential facts of life, and see if I could not learn what it had to teach, and not, when I came to die, discover that I had not lived.”

- Henry David Thoreau