zook cabins nationwide delivery area

Musketeer

The Musketeer Prefab Log Cabin has many of the same features of our other ranch style cabins. The first floor layout is like all of our other ranch style models. What sets apart our Musketeer Log Cabin from the rest of the ranch style is its steep pitch roof that allows for additional storage in the attic. Maybe the other models have been lacking this feature for you. In addition, the steep roof of our Musketeer Cabin gives a better snow load rating meaning you can have this cabin placed in areas where high levels of snow may be predicted without needing to worry about the build up.

Musketeer 1

Mid-Atlantic & North Eastern Region Cabins

Many people find the higher exterior profile of this pitched roof log cabin to be very attractive. The Musketeer prefab log cabins are ideal for everything from luxurious outfitters hunting cabins to customized vacation homes. All your friends are sure to be jealous unless you hide it in a remote location they don’t know about (which is what we would suggest).

Be Inspired

Musketeer Log Cabin Photo Gallery

What will you do with your Musketeer Prefab Log Cabin?

Customer Project Stories

Standard Features Of The Musketeer Cabin

cabin certified

Certified Modular Cabins for sale, fully engineered to your state & local building codes

cabin warranty

Architectural shingle roof, with an option to upgrade to metal roofing

cabin flooring

¾” tongue & groove knotty-white pine walls and ceiling, finished with 2-coat clear poly finish and engineered yellow pine tongue & groove wood floors with durable clear poly finish

cabin windows

Insulated vinyl windows, double-hung/tilt with max efficiency Low-E/Argon/HC Glass

cabin cabinets

Solid pine cabinetry with full-extension, soft-close doors & drawers and laminate counter tops, with an option for a solid surface Corian

cabin plumbing

Full wired, plumbed, and insulated to meet all state & local building codes

The Musketeer Prefab Log Cabin Floor Plans

Explore these cabin floor plans to find the one that’s right for you. Not all cabins are available in all sizes, so if you can’t find the size you’re looking for, check one of the other cabins. And if you have any questions or ideas, please feel free to contact us.

Musketeer 2
24 × 36

864 finished sq.ft. · 2 Bedroom(s) · 1 Bathroom(s) · Side  Porch

Musketeer 3
26 × 30

780 finished sq.ft. · 1 Bedroom(s) · 1 Bathroom(s) · Side  Porch

Musketeer 4
24 × 30

720 finished sq.ft. · 1 Bedroom(s) · 1 Bathroom(s) · Side  Porch

Musketeer 5
26 × 36

936 finished sq.ft. · 2 Bedroom(s) · 1 Bathroom(s) · Side  Porch

Musketeer 6
26 × 44

1144 finished sq.ft. · 2 Bedroom(s) · 2 Bathroom(s) · Side  Porch

Musketeer 7
26 × 48

1248 finished sq.ft. · 3 Bedroom(s) · 2 Bathroom(s) · Side  Porch

Musketeer 8
26 × 52

1352 finished sq.ft. · 3 Bedroom(s) · 2.5 Bathroom(s) · Side  Porch

Musketeer 9
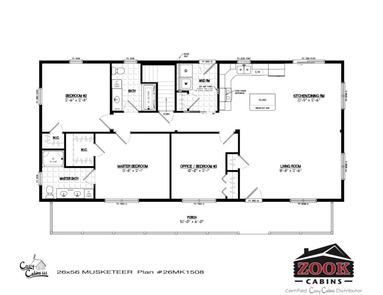
26 × 56

1456 finished sq.ft. · 3 Bedroom(s) · 2 Bathroom(s) · Side  Porch

Musketeer 10
28 × 30

840 finished sq.ft. · 1 Bedroom(s) · 1 Bathroom(s) · Side  Porch

Musketeer 11
28 × 36

1008 finished sq.ft. · 2 Bedroom(s) · 1 Bathroom(s) · Side  Porch

Musketeer 12
28 × 48

1344 finished sq.ft. · 3 Bedroom(s) · 2 Bathroom(s) · Side  Porch

Musketeer 13
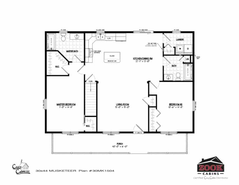
28 × 44

1232 finished sq.ft. · 2 Bedroom(s) · 2 Bathroom(s) · Side  Porch

Musketeer 14
28 × 52

1456 finished sq.ft. · 3 Bedroom(s) · 2.5 Bathroom(s) · Side  Porch

Musketeer 15
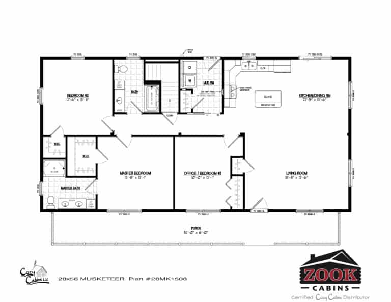
28 × 56

1568 finished sq.ft. · 3 Bedroom(s) · 2 Bathroom(s) · Side  Porch

Musketeer 16
30 × 44

1320 finished sq.ft. · 2 Bedroom(s) · 2 Bathroom(s) · Side  Porch

Musketeer 17
30 × 48

1440 finished sq.ft. · 3 Bedroom(s) · 2 Bathroom(s) · Side  Porch

Musketeer 18
30 × 52

1560 finished sq.ft. · 3 Bedroom(s) · 2.5 Bathroom(s) · Side  Porch

Musketeer 19
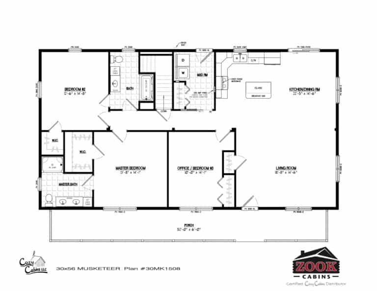
30 × 56

1680 finished sq.ft. · 3 Bedroom(s) · 2 Bathroom(s) · Side  Porch

Our Pricing Includes Delivery!

Delivery, set-up, and crane charges are included. All floor plans are customizable, so let your cabin project manager know what personal touch you would like to incorporate. With Psy Homes you won’t have any worries…just a lot more time enjoying your new home and making new memories for years to come!

prefab log cabin for sale for use as hunting cabin

These wooden houses for sale also give you the additional benefit of added storage space. This is often at a premium in most small log cabin homes. The Musketeer Prefab Log Cabin is the perfect style for you if you need to maximize living space in your log cabin home, but you still need a significant amount of storage space. For examples of what it may be like to live your life in check out our blog post about Cabin Living.

prefab log cabin and wooden houses for sale

Highlights Of The Prefab Log Cabin

Standard Features on these wooden houses for sale includes 6′ Porch, Stained Log Siding, Insulated Windows, 8 pitch roof, upstairs attic, architectural shingles, and a fiberglass door. In addition you can use our many customization options to add your own flare to this prefab log cabin. And if you have questions about wooden home prices, please feel free to contact us. Your cabin should look like you. We’ll do everything we can to make this happen.

Ready for the Cabin Life?

“I went to the woods because I wished to live deliberately, to front only the essential facts of life, and see if I could not learn what it had to teach, and not, when I came to die, discover that I had not lived.”

- Henry David Thoreau